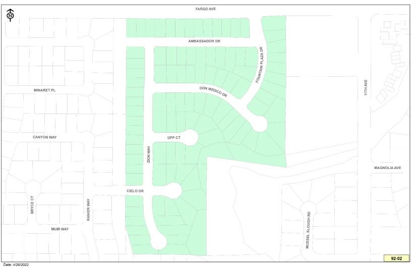
Cielo en Tierra (District 92-02)

The parcels assessed in this District (totaling 98 lots) include, but are not limited to Tracts 652, 652-2, 652-3, 652-4, and 652-5. The properties within this District proportionately share and receive special benefit from the maintenance, servicing, and operation of an estimated 11,735 square feet of designated landscape improvement area. These improvements are maintained at Service Level D (serviced 22 times per year, or every week March-October, then bi-weekly November-February).

Property owners in this district pay $28.70 per year.

cielo en tierra (1)

cielo en tierra